RODINNÝ DŮM, 135 M2, 5+KK, UHŘICE U KROMĚŘÍŽE - PRODÁNO

RODINNÝ DŮM, 135 M2, 5+KK, UHŘICE U KROMĚŘÍŽE - PRODÁNO

RODINNÝ DŮM, 135 M2, 5+KK, UHŘICE U KROMĚŘÍŽE - PRODÁNO

Energetický štítek B - úsporná

Užitná plocha 135 m²

Elektřina 230 V, 400 V

Vytápění Podlahové

Parkování 2 místa

Typ budovy Cihlová

Doprava Dálnice, silnice, autobus

Velikost pozemku 500

Voda Dálkový vodovod

Dispozice 5+kk

Prodáno Za 2 týdny od vydání SP

0 Kč vč. DPH

  • RODINNÝ DŮM, 135 M2, 5+KK, UHŘICE U KROMĚŘÍŽE

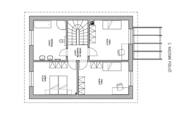
    Výstavba rodinného domu 5+kk v malebné vesničce Uhřice u Kroměříže. Obec Morkovice Slížany je nedaleko a v této obci je veškerá občanská vybavenost. Do Brna je to cca 35 minut autem. V ceně je zahrnut pozemek, plně vybavený RD mimo kuchyňskou linku, osvětlení a ploty. V domě budou instalována krbová kamna, vytápění bude pomocí kondenzačního plynového kotle.

    Obec Uhřice leží na silnici II. třídy z městečka Morkovic do obce Mořice. Územně se nachází na rozhraní tří okresů - vyškovského, prostějovského a kroměřížského. Jedná se o klidné bydlení s dobrou dostupností na dálnici mezi Brnem a Kroměříží. Dům bude dvoupatrový s dvěma parkovacími místy. Velikost pozemku je 500 m². Uvedená cena je bez provize RK.

     

     

  • REALITNÍ MAKLÉŘ

    SIMONA TIPOA

    +420 775 047 799

    simona.tipoa@firmanaduveru.cz

  • S financováním vám pomůže FND Finance s.r.o.

  • O nemovitosti

    RODINNÝ DŮM, 135 M2, 5+KK, UHŘICE U KROMĚŘÍŽE

    Výstavba rodinného domu 5+kk v malebné vesničce Uhřice u Kroměříže. Obec Morkovice Slížany je nedaleko a v této obci je veškerá občanská vybavenost. Do Brna je to cca 35 minut autem. V ceně je zahrnut pozemek, plně vybavený RD mimo kuchyňskou linku, osvětlení a ploty. V domě budou instalována krbová kamna, vytápění bude pomocí kondenzačního plynového kotle.

    Obec Uhřice leží na silnici II. třídy z městečka Morkovic do obce Mořice. Územně se nachází na rozhraní tří okresů - vyškovského, prostějovského a kroměřížského. Jedná se o klidné bydlení s dobrou dostupností na dálnici mezi Brnem a Kroměříží. Dům bude dvoupatrový s dvěma parkovacími místy. Velikost pozemku je 500 m². Uvedená cena je bez provize RK.

     

     

  • Realitní makléř

    REALITNÍ MAKLÉŘ

    SIMONA TIPOA

    +420 775 047 799

    simona.tipoa@firmanaduveru.cz

  • kalkulace

    S financováním vám pomůže FND Finance s.r.o.

Variabilní obsah  dle daného produktu
background

HLEDÁM SPECIALISTU NA REALITY

Rádi s vámi projdeme každý detail a doporučíme nejvýhodnější řešení

O vaše data je u nás postaráno. Přečtěte si naše podmínky pro zpracování os.údajů

arrow

Nejpozději do 24 hodin se ozveme nazpátek.

FND reality

phoneIco+420 517 367 993

phoneIcoreality@firmanaduveru.cz

phoneIcoHády 968/2
614 00 Brno-Maloměřice a Obřany

Zastavte se u nás v moderních kancelářích na příjemné posezení s důvěrníky a skvělou kávou, kterou si sami pražíme. Rádi vás uvidíme.

quotePack title

MÁTE FIŠTRÓNA A NADPŘIROZENÉ DOVEDNOSTI?

Chceme je vidět!

 

Kariéraarrow